Innowell Office Fitout
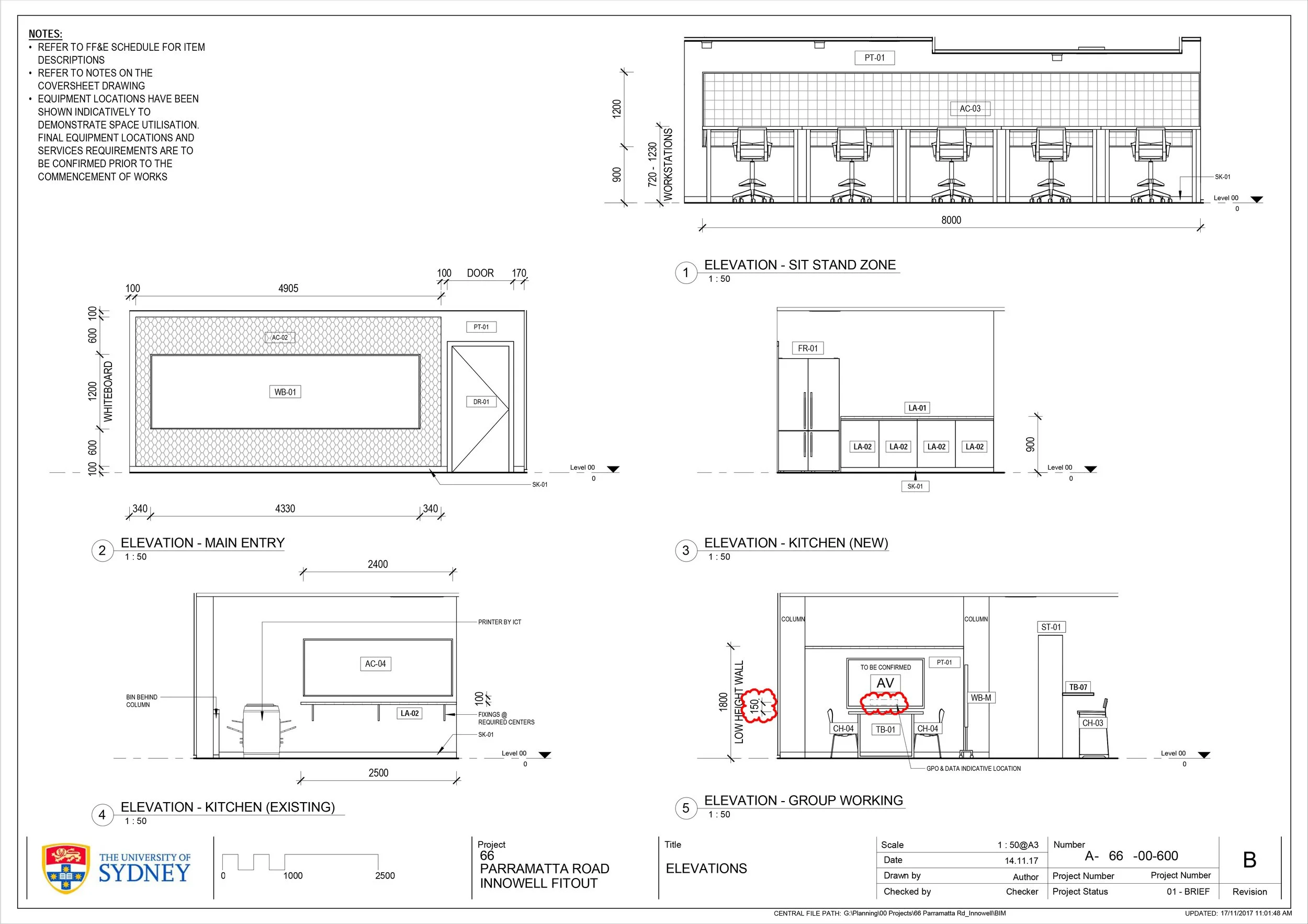
Innowell office fitout was the first project I took from concept to completion. I engaged directly with the client and end user to understand the brief. I presented to the client throughout the design stages, including finishes workshops and drawing reviews.





I delivered a complete pack for tender/build drawings, selected finishes and furniture for the site, approved by the client.
Project Completion was 2018
I visited the site man times during construction and liaised with the main contractor to resolve any issued found on site.



